Luxusný priestor pre rodinu s panoramatickým výhľadom - Holíč, Jednoradová
ZNÍŽENÁ CENA!!! Predstavujeme vám výnimočný 4-izbový byt s luxusnou výmerou 91,60 m², ktorý ponúka komfort, štýl a dokonalé rodinné zázemie. Tento byt je ako stvorený pre tých, ktorí túžia po priestore, svetle a kvalitnom bývaní v pokojnej, no zároveň prakticky situovanej lokalite Holíča.
Nachádza sa na najvyššom 12. poschodí zatepleného bytového domu s dvomi novými výťahmi, vďaka čomu si môžete naplno vychutnávať krásne panoramatické výhľady a nerušený pokoj.
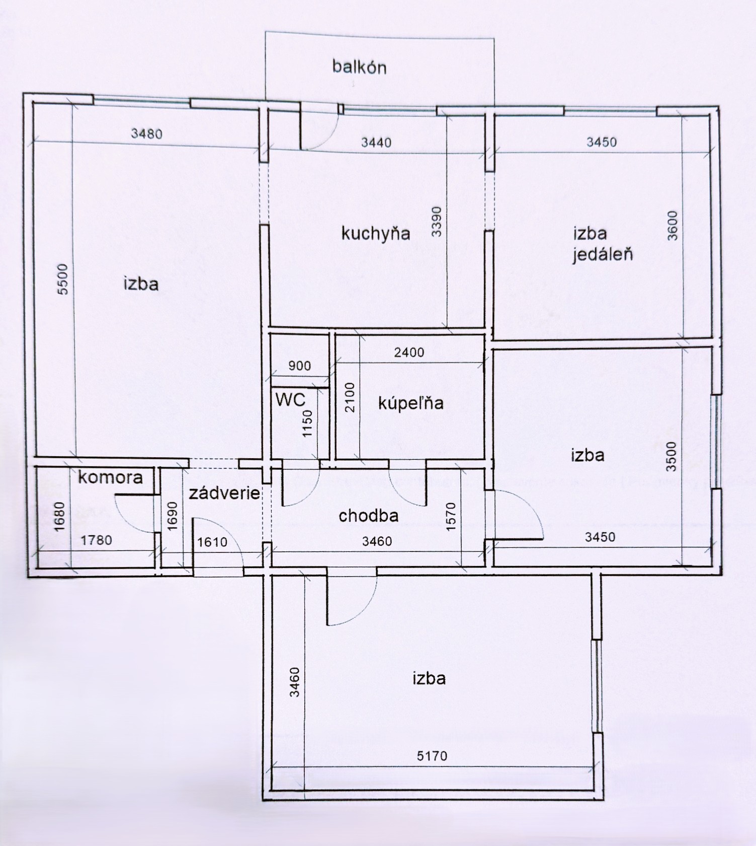
Byt je premyslene riešený pre potreby modernej rodiny: priestranná vstupná chodba so šikovnou komorou, kuchyňa s východom na balkón s krásnym výhľadom, svetlá obývačka ako srdce domova, tri samostatné izby, pričom jedna v súčasnosti slúži ako jedáleň, kúpeľňa s vaňou aj sprchovým kútom, samostatné WC.
K bytu patrí aj pivnica (1,20 m²) na prízemí bytového domu.
Vstup do bytu zabezpečujú bezpečnostné dvere, v interiéri boli použité kvalitné materiály a moderné dizajnové prvky, ktoré vytvárajú harmonický a príjemný domov.
Kuchyňa- 11,66 m2, obývačka- 19,14 m2, izba- 12,42 m2, izba- 17,89 m2, izba- 12,08 m2, zádverie- 2,72 m2, chodba- 5,43 m2, komora- 2,99 m2, kúpeľňa- 5,04 m2, WC- 1,04 m2 a pivnica- 1,20 m2.
Obytné miestnosti sú orientované na juhovýchod a severovýchod, čo zaručuje dostatok prirodzeného svetla počas celého dňa a príjemnú klímu v letných mesiacoch, k dispozícii sú 2 klimatizačné jednotky (v kuchyni a spálni).
Byt sa nachádza v skvelej časti Holíča – na ulici Jednoradová, len pár krokov od Lidlu, školy, škôlky či Holíčskeho zámku. Všetko potrebné máte po ruke – od obchodov, služieb až po možnosti voľnočasových aktivít.
Zastávka autobusu je do 5 minút chôdze a v blízkosti sa nachádza aj železničná stanica, čo zaručuje výbornú dostupnosť do okolitých miest – Skalice, Hodonína, Senice aj Kútov.
Tento byt je dokonalým spojením komfortu, kvality a krásneho dizajnu. Každý detail tu má svoje miesto a vytvára pocit domova, ktorý si zamilujete už pri prvej návšteve.
V prípade záujmu ma neváhajte kontaktovať ešte dnes, rada Vám ho osobne predstavím!
CENA. 139.990,- Eur

Dobrý deň,
volám sa Zuzana Vávrová, v realitách pôsobím od roku 2014. Aj moje predchádzajúce pracovné aktivity boli spojené s úctou a profesionálnym prístupom ku klientom.
Práca realitného makléra ma skutočne baví a snažím sa ju robiť na špičkovej úrovni, všetko s jasným cieľom. Predať vašu nehnuteľnosť za čo najvyššiu cenu k vašej plnej pokojnosti.
Aby som tu prezentovala, že keď dvaja robia to isté, nikdy to nie je to isté. Prosím, prečítajte si moje tipy a články, verím, že vám tieto informácie pomôžu v rozhodovaní a že si pre predaj nehnuteľnosti zvolíte tú správnu cestu.
Za každým predajom nehnuteľnosti sa totiž skrýva ľudský príbeh. A to je dôvod, prečo by nikto nemal tak dôležitý životný krok podceňovať. Ani predávajúci, ani maklér. Záleží mi na odvedení špičkovej práce a na spokojnosti klienta, taktiež dbám na svojom dobrom mene a povesti.
Ak ste sa dočítali až sem, máte môj obdiv a ďakujem Vám.
Vďaka veľa zrealizovaným predajom Vám môžem ponúknuť svoje skúsenosti na realitnom trhu, individuálny prístup a profesionálne služby.
Rada Vás prevediem predajom aj Vašej nehnuteľnosti.
Teším sa na spoluprácu.