Na predaj 2-izbový byt v obci Radimov, okr. Skalica


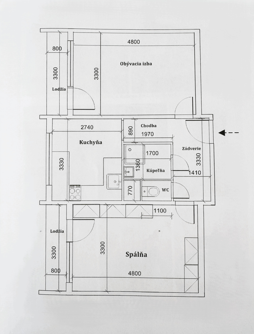
Byt sa nachádza na 1. poschodí dvojpodlažného bytového domu a vďaka svojej praktickej dispozícii pôsobí svetlo a vzdušne. Obe izby sú nepriechodné (obývačka a spálňa) a z každej je výstup na balkón, čo výrazne zvyšuje komfort bývania.
Byt prešiel kompletnou rekonštrukciou v roku 2019 a je pripravený na okamžité nasťahovanie. Disponuje obývačou, spálňou, kuchyňou, kúpeľňou so sprchovým kútom, samostatným WC a priestrannou chodbou s dostatkom úložného priestoru. Veľkou výhodou je vlastné plynové kúrenie, ktoré zabezpečuje nízke prevádzkové náklady. Celková podlahová plocha bytu bez balkónov je 53 m².
K bytu prislúcha garáž na prízemí so vstupom z vonku - hneď vedľa vstupu do bytového domu, pivnica a možnosť využívania záhradky, ktorá je dlhodobo užívaná výlučne majiteľom bytu. V bytovom dome je dostupný optický internet. Bytový dom bol daný do užívania v roku 1985, v roku 2017 bola zateplená severná strana a v roku 2021 prebehlo zateplenie strechy, správu domu zabezpečuje OSBD Senica.
Obec Radimov ponúka pokojné bývanie v blízkosti prírody a zároveň výbornú dostupnosť do miest Holíč a Skalica. Nachádza sa tu materská škola, potraviny, obecný úrad, kostol, futbalové ihrisko a pravidelná autobusová doprava. Radimov sa nachádza 90 km severne od hlavného mesta Bratislavy,v blízkosti hraníc s Českou republikou (15 km) a Rakúskom (25 km).
CENA DOHODOU!

Dobrý deň,
volám sa Zuzana Vávrová, v realitách pôsobím od roku 2014. Aj moje predchádzajúce pracovné aktivity boli spojené s úctou a profesionálnym prístupom ku klientom.
Práca realitného makléra ma skutočne baví a snažím sa ju robiť na špičkovej úrovni, všetko s jasným cieľom. Predať vašu nehnuteľnosť za čo najvyššiu cenu k vašej plnej pokojnosti.
Aby som tu prezentovala, že keď dvaja robia to isté, nikdy to nie je to isté. Prosím, prečítajte si moje tipy a články, verím, že vám tieto informácie pomôžu v rozhodovaní a že si pre predaj nehnuteľnosti zvolíte tú správnu cestu.
Za každým predajom nehnuteľnosti sa totiž skrýva ľudský príbeh. A to je dôvod, prečo by nikto nemal tak dôležitý životný krok podceňovať. Ani predávajúci, ani maklér. Záleží mi na odvedení špičkovej práce a na spokojnosti klienta, taktiež dbám na svojom dobrom mene a povesti.
Ak ste sa dočítali až sem, máte môj obdiv a ďakujem Vám.
Vďaka veľa zrealizovaným predajom Vám môžem ponúknuť svoje skúsenosti na realitnom trhu, individuálny prístup a profesionálne služby.
Rada Vás prevediem predajom aj Vašej nehnuteľnosti.
Teším sa na spoluprácu.